RLT2. Ca la iaia
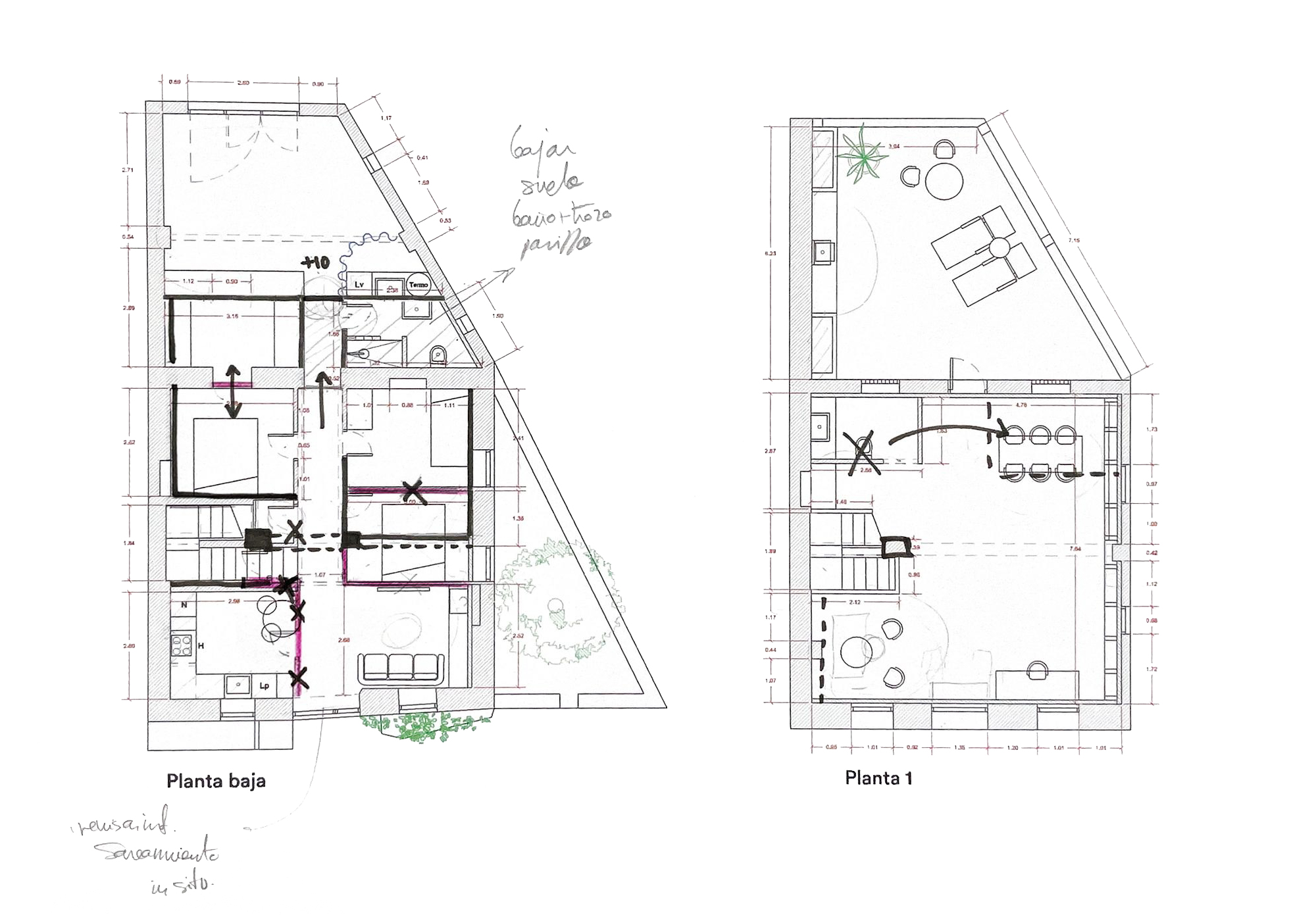
Built in 1895 by its grandparents, the house of my grandmother needed a structural rehabilitation and to isolate the walls of the Castellon winter. With that process started, the house was sold and the future inhabitants decided to condition it to live there all year round. They have left the city behind to enter the rural life, accompanied by the fig tree and the vine that my great-great-grandfathers planted.
An intervention is proposed that lets natural light enter, highlights the wooden beams and transforms the attic, to which we were scared to go up as children, into a welcoming space.
January 2023 – July 2024
Navajas, Castelló
Published in Arquitectura de Castelló, Arquitectura Reciente en Castellón 2020-2024
Client Pilar + Raimundo
Design & construction management Maria Aucejo
Structural Consultancy Víctor Fernández
Construction Francisco Villalba
Photography Pol Masip